• +49 172 6666014
  • Diese E-Mail-Adresse ist vor Spambots geschützt! Zur Anzeige muss JavaScript eingeschaltet sein.
Was suchen Sie?
Kaufpreis
×
Grundstücksfläche
×

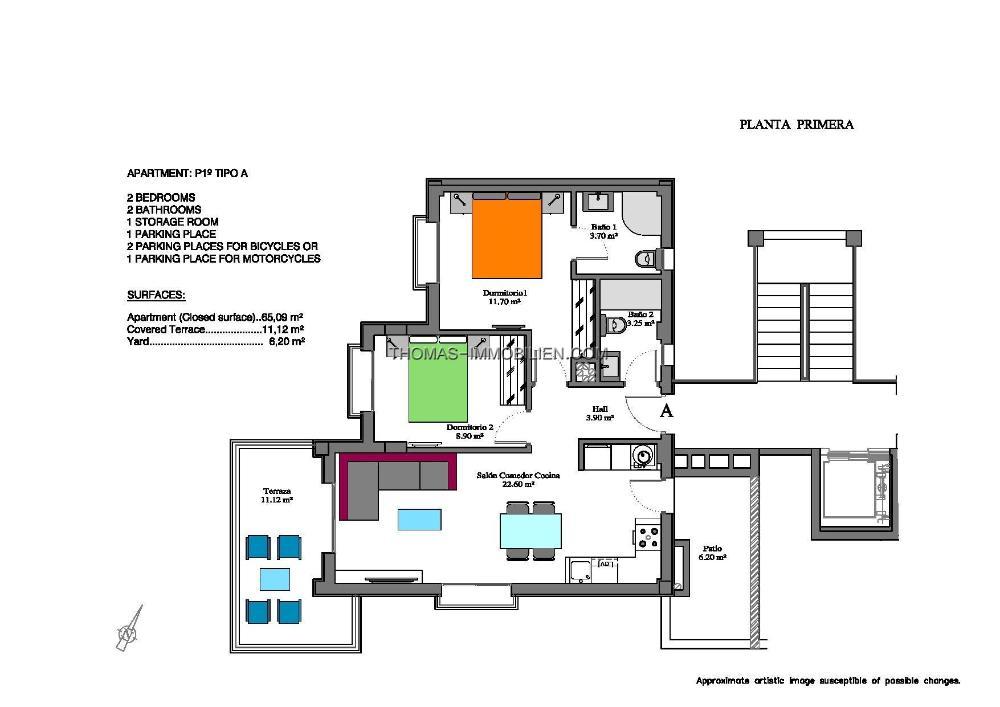
Herrliche Wohnung zwischen Meer und Golf in Orihuela Costa

Merken Drucken

Objektinformationen

Kaufpreis:
255'000,00 €
Käuferprovision:
Provisionsfrei für den Käufer
Wohnfläche ca.:
65,00 m²
Schlafzimmer:
2
Badezimmer:
2

Objektnummer:

REF.NR: 4-27-N2226

Ausstattung

Swimmingpool
Neubau


Objektbeschreibung

Herrliche Wohnung zwischen Meer und Golf!
Gemütliche Wohnung mit 2 Schlafzimmern und 2 Bädern
Die Residenz befindet sich in einer ruhigen und sicheren Gegend und ist komplett ausgestattet (sie verfügt über alle möglichen Annehmlichkeiten). In unmittelbarer Nähe finden Sie beispielsweise 4 herrliche Golfplätze, ein großes Einkaufsviertel (la Zenia Boulevard), mehrere Strände, Supermärkte, Bars und Restaurants usw. Es ist eine Luxusresidenz, alle Wohnungen und Häuser sind geräumig und komfortabel.
Die Residenz verfügt über einen privaten Parkplatz und ist mit Aufzügen ausgestattet.
In der Anlage befindet sich ein Gemeinschaftspool (großer Swimmingpool, Kinderbecken und Whirlpool mit Warmwasser). Auch ein Spielplatz und mehrere Grünflächen.
Kurzum: der ideale Ort, um sich auszuruhen und die Region zu genießen, um in Spanien zu leben.

Kontaktformular



Please publish modules in offcanvas position.