• +49 172 6666014
  • Diese E-Mail-Adresse ist vor Spambots geschützt! Zur Anzeige muss JavaScript eingeschaltet sein.
Was suchen Sie?
Kaufpreis
×
Grundstücksfläche
×

Neubau-Wohnanlage mit insgesamt 94 modernen 2-Schlafzimmer-Apartments und Penthäusern in Villamartin, Orihuela Costa

Merken Drucken

Objektinformationen

Kaufpreis:
425'000,00 €
Käuferprovision:
Provisionsfrei für den Käufer
Wohnfläche ca.:
103,00 m²
Schlafzimmer:
2
Badezimmer:
2

Objektnummer:

REF.NR: 4-27-N7130

Ausstattung

Swimmingpool
Neubau


Objektbeschreibung

NEU GEBAUTE WOHNANLAGE IN VILLAMARTIN
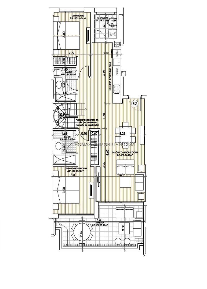
Neubau-Wohnanlage mit insgesamt 94 modernen 2-Schlafzimmer-Apartments und Penthäusern in Villamartin.
Sie können wählen zwischen Erdgeschosswohnungen mit Garten, Wohnungen mit gemütlichen Terrassen oder Penthäusern mit sonnigen Dachterrassen und fantastischer Aussicht
Offene Küche und Wohnzimmer, 2 geräumige Schlafzimmer mit Einbauschränken, 2 Bäder, Waschküche.
Die Wohnungen werden mit weißer Ware, LED-Beleuchtungspaket, Fußbodenheizung und Duschabtrennung in den Bädern, Klimaanlage, Legrand Smart Home System, aerothermisches System für Warmwasser, motorisierte Jalousien und Privatparkplatz geliefert.
Die Wohnanlage bietet einen großen Gemeinschaftspool, Grünflächen, eine Sauna, einen Kinderspielplatz und einen Fitnessraum.
Ausgezeichnete Lage in der Nähe von Geschäften und Golfplätzen.
Die Gegend um Villamartin ist bei Touristen und Einwohnern sehr beliebt. Der größte Teil der Gemeinde besteht aus westeuropäischen Auswanderern, die sich in den letzten 15 Jahren dort niedergelassen haben und das ursprüngliche Dorf praktisch in ein lebendiges Ganzjahresziel verwandelt haben.
In der Nähe gibt es 3 Golfplätze und die mit der blauen Flagge ausgezeichneten Strände sind nur 10 Autominuten entfernt.
Die Flughäfen von Alicante und Murcia sind 45 Autominuten entfernt.

Kontaktformular



Please publish modules in offcanvas position.