• +49 172 6666014
  • Diese E-Mail-Adresse ist vor Spambots geschützt! Zur Anzeige muss JavaScript eingeschaltet sein.
Was suchen Sie?
Kaufpreis
×
Grundstücksfläche
×

Neubauvillen mit 2 Modellen zur Auswahl: 1 oder 2 Etagen in Orihuela Costa, Spanien

Merken Drucken

Objektinformationen

Kaufpreis:
669'900,00 €
Käuferprovision:
Provisionsfrei für den Käufer
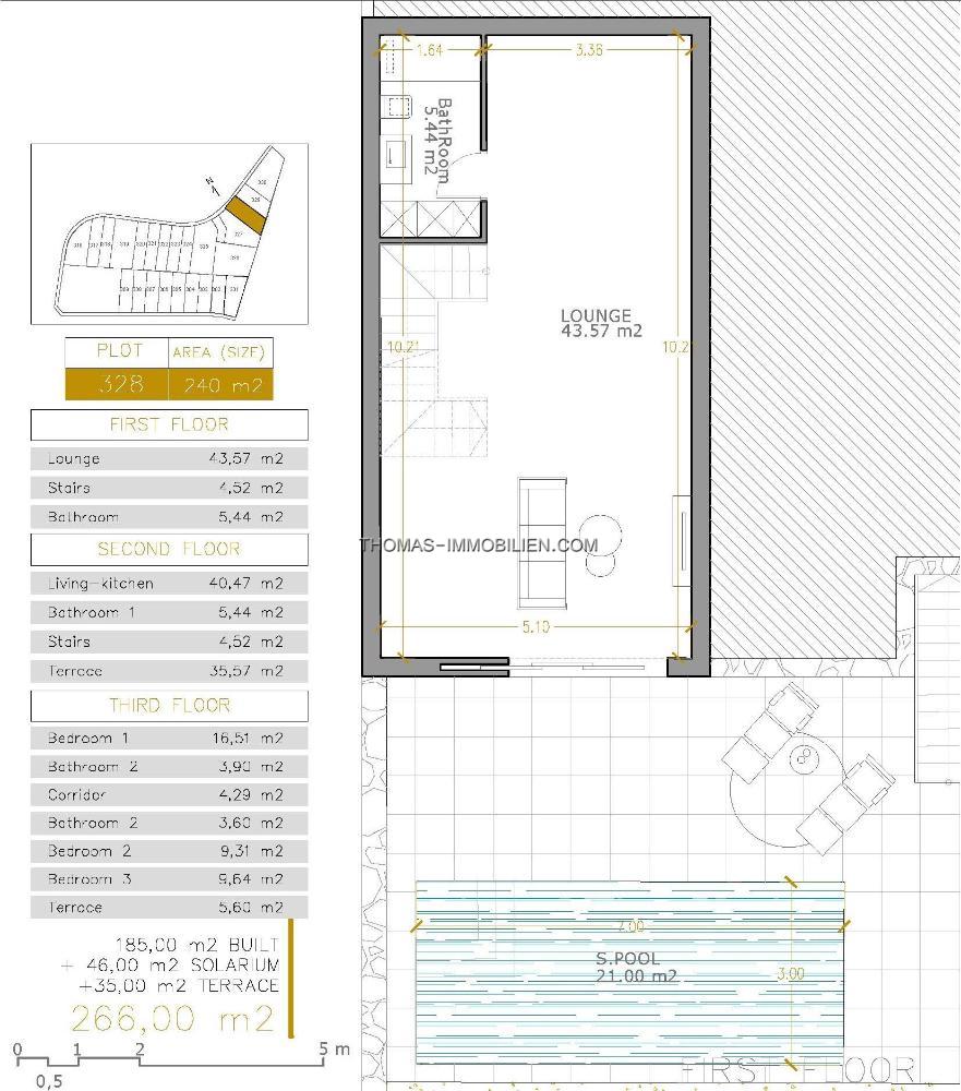
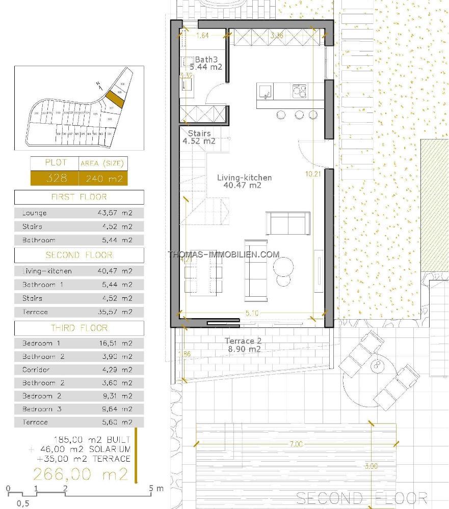
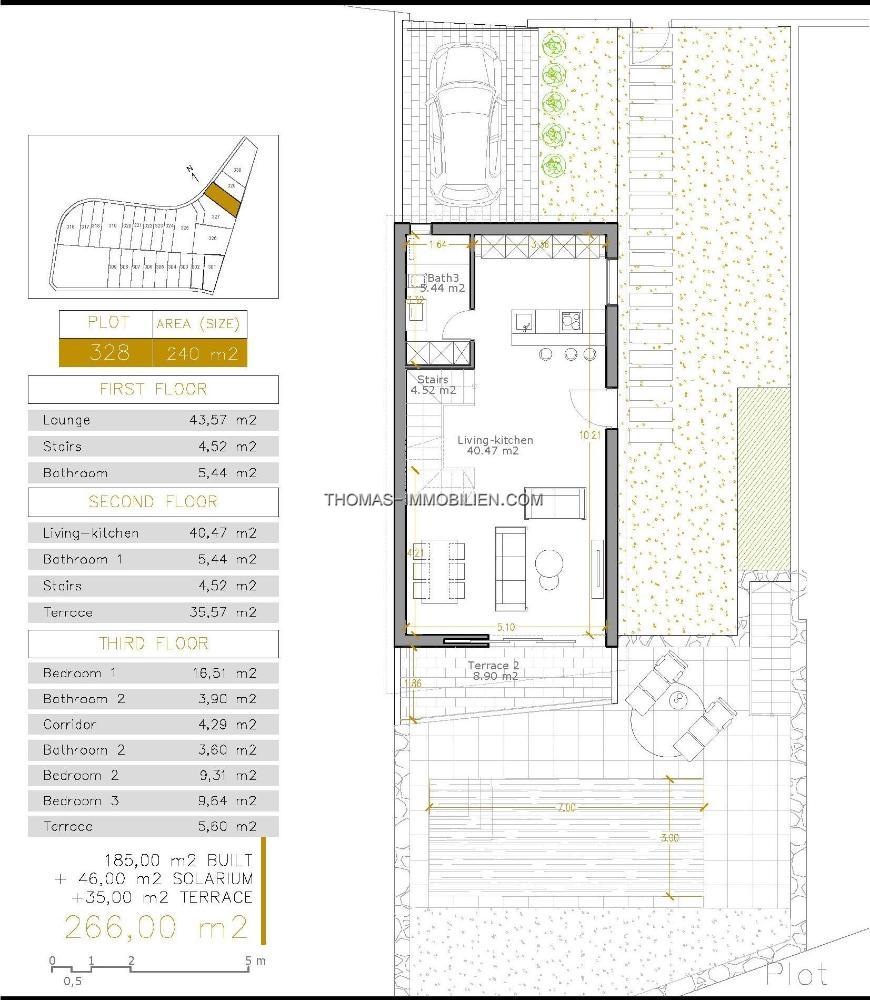
Wohnfläche ca.:
185,00 m²
Grundstück:
240,00 m²
Schlafzimmer:
3
Badezimmer:
4

Objektnummer:

REF.NR: 4-27-N7369

Ausstattung

Swimmingpool
Neubau


Objektbeschreibung

MODERNE NEUBAUVILLEN IN VILLAMARTIN Neubauvillen mit 2 Modellen zur Auswahl: 1 oder 2 Etagen. Alle mit 3 Schlafzimmern und 2 oder 3 Bädern, privatem Schwimmbad, Parkplatz auf dem Grundstück und privater Sonnenterrasse. Das Grundstück ist rundherum eingezäunt und verfügt über Zugangstore für Fahrzeuge und Fußgänger. Die Oberfläche des Grundstücks ist aufgeteilt in einen Parkplatz mit bedrucktem Beton, eine Rasenfläche und eine gepflasterte Fläche mit demselben Bodenbelag wie im Inneren. Der Innenausbau ist mit einer gepanzerten Hochsicherheitstür ausgestattet. Sowohl die Innentüren als auch die Schränke sind weiß lackiert. Die Küche ist mit weißen Möbeln und einer Quarz-Arbeitsplatte ausgestattet, die farblich auf den Boden des Hauses abgestimmt ist. In den Bädern gibt es Duschwannen und integrierte Glasabtrennungen sowie Badmöbel und wandmontierte Sanitärobjekte. Die Villa verfügt über Vorinstallationen für eine Klimaanlage mit Kanalisation. Diese fantastischen Immobilien befinden sich in der Nähe von Villamartin Plaza und dem Golfplatz von Villamartin, wo Sie zahlreiche Bars und Restaurants, Supermärkte, Banken, einen Taxistand und die örtliche Bushaltestelle finden. Die Strände von Orihuela Costa sind nur 5 Autominuten entfernt, ebenso wie das neue Einkaufszentrum Zenia Boulevard (das größte Einkaufszentrum der Provinz Alicante). Die Flughäfen von Alicante und Murcia sind in 45 Minuten mit dem Auto zu erreichen.

Kontaktformular



Please publish modules in offcanvas position.