• +49 172 6666014
  • Diese E-Mail-Adresse ist vor Spambots geschützt! Zur Anzeige muss JavaScript eingeschaltet sein.
Was suchen Sie?
Kaufpreis
×
Grundstücksfläche
×

Neue fünfstöckige Neubausiedlung im avantgardistischem Design in Torrevieja, Spanien

Merken Drucken

Objektinformationen

Kaufpreis:
469'000,00 €
Käuferprovision:
Provisionsfrei für den Käufer
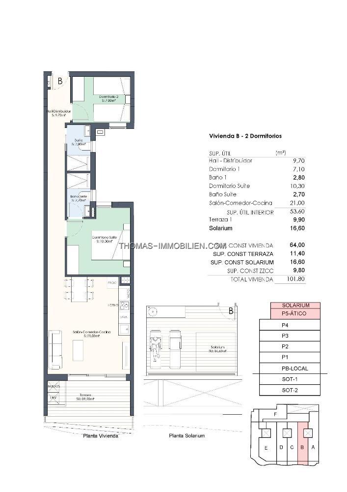
Wohnfläche ca.:
64,00 m²
Schlafzimmer:
2
Badezimmer:
2

Objektnummer:

REF.NR: 4-27-N7747

Ausstattung

Swimmingpool
Neubau


Objektbeschreibung

NEU GEBAUTE PENTHÄUSER IN TORREVIEJA Die fünfstöckige Neubausiedlung mit avantgardistischem Design in Torrevieja mit 34 exklusiven Immobilien bietet eine Vielzahl von Wohnmöglichkeiten, von stilvollen Apartments bis zu Penthäusern mit atemberaubendem Panoramablick. Jeder Winkel der Wohnanlage wurde sorgfältig geplant, um den Raum und das natürliche Licht zu maximieren und helle und einladende Umgebungen zu schaffen, die zum Wohlfühlen einladen. Residential liegt majestätisch im Herzen von Torrevieja und hat sich als eine Wohnanlage voller Eleganz und Modernität etabliert. Die strategisch günstige Lage sorgt dafür, dass die Bewohner sich als Teil dieser erstaunlichen Stadt fühlen und einen einfachen Zugang zu einer Vielzahl von Dienstleistungen und Attraktionen haben. Es ist eine einzigartige Gelegenheit, in einen anspruchsvollen Lebensstil im Herzen von Torrevieja zu investieren! Die unvergleichliche Lage, das avantgardistische Design und die Liebe zum Detail sorgen dafür, dass diese Wohnanlage viel mehr ist als nur ein Ort zum Wohnen: ein Zuhause, in dem Träume Gestalt annehmen und das Leben in vollen Zügen genossen wird. Torrevieja ist eine spanische Stadt in der Provinz Alicante, an der Costa Blanca. Sie ist für ihr typisch mediterranes Klima und ihre Küstenlinie bekannt. Entlang der Sandstrände gibt es Strandpromenaden mit Ferienanlagen. Das kleine Meeres- und Salzmuseum beherbergt Ausstellungen über die Fischerei- und Salzgeschichte der Stadt. Im Landesinneren befindet sich der Naturpark Lagunas de La Mata-Torrevieja mit Wanderwegen und zwei salzhaltigen Lagunen, von denen eine rosa und die andere grün ist. Der Flughafen Alicante ist 40 Minuten und der Flughafen Murcia etwa 1 Stunde entfernt.

Kontaktformular



Please publish modules in offcanvas position.