• +49 172 6666014
  • Diese E-Mail-Adresse ist vor Spambots geschützt! Zur Anzeige muss JavaScript eingeschaltet sein.

Immobilien in Spanien an der Costa Blanca, Costa del Sol, Mallorca und Teneriffa

Was suchen Sie?
Kaufpreis
×
Grundstücksfläche
×

TOP Lage Erdgeschosswohnung mit 2 großen Terrassen + inkl. Stellplatz in der Tiefgarage, Strandnah Cala Millor

Merken Drucken

Objektinformationen

Kaufpreis:
415'000,00 €
Käuferprovision:
Provisionsfrei für den Käufer
Wohnfläche ca.:
94,00 m²
Schlafzimmer:
2
Badezimmer:
1

Objektnummer:

REF.NR: 200-45931

Ausstattung

Swimmingpool


Objektbeschreibung

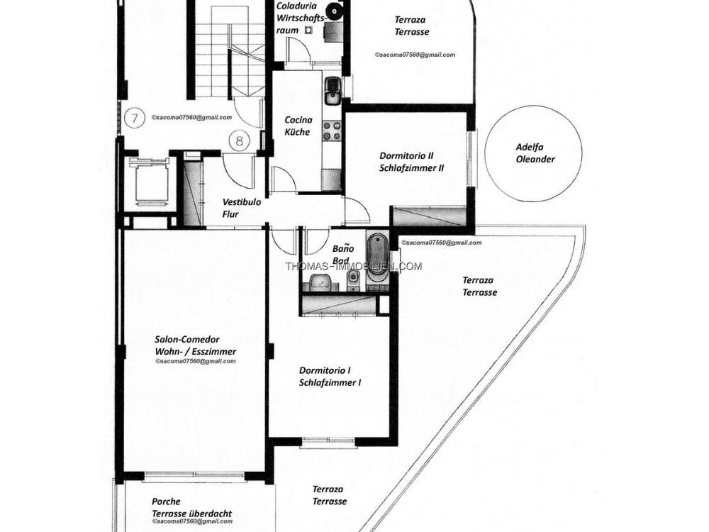
Wunderschöne Erdgeschosswohnung von ca. 94m² mit zwei großen Terrassen von ca. 30m² und eine Veranda von ca. 10m². Dieses geräumige Apartment befindet sich in einer ruhigen Anlage in der Nähe des Strandes von Cala Millor, des Naturschutzgebiets Punta De N‘ Amer und des Strandes von Sa Coma. Sie finden alle Arten von Dienstleistungen, Geschäfte, Restaurants usw. in der nähe.

Die Wohnung verfügt über einen Eingangsbereich mit Einbauschränken, zwei Doppelschlafzimmer, ein Badezimmer und ein sonniges Wohn-Esszimmer mit Zugang zur Hauptterrasse und Veranda, separate Küche mit Waschküche und Zugang zur zweiten Terrasse. Das Apartment bietet von der Hauptterrasse aus direkten Zugang zum Gemeinschaftspool und den schönen Gärten.

Die Immobilie wird mit Klimaanlage und Infrarotheizung in der gesamten Wohnung, elektrischen Jalousien in jedem Zimmer und einer möblierten und ausgestatteten Küche verkauft. Unmöbliert zu verkaufen. Abstellraum und Tiefgarage inklusive.

Kontaktformular



Please publish modules in offcanvas position.